Thornwood Road, Epping, CM16
Property Features
- Chain free
- Off road parking
- Charactered cottage
- Over looking woodland
- Spacious kitchen
- short walk to High Street
Property Summary
Full Details
Welcome to Belgrave Cottage. Tucked away, overlooking Epping Forest just off Thornwood Road and packed with charm and scope, this three bedroom cottage offers space and character, plus a gorgeous rear garden to love. With the beauty of Epping Forest on your doorstep, here find a fabulous blank canvas to add your own stamp.
Welcomed by off road parking and classic Victorian charm, there’s something exciting about Belgrave Cottage - a home that’s move-in ready, yet stacked with potential to unlock. With its double height rear extension to increase space, it’s so much more than the traditional two up, two down. We love the classic cottage style, including the stripped wood flooring, plus the layout and room choice gets a big tick. With a ground floor WC, upstairs bathroom with shower and roll top tub, three double bedrooms plus a spacious lounge and kitchen, it’s filled with function and practicality. A real highlight for us - sitting just beyond the sunny conservatory - is the gorgeous rear garden. Completely enchanting, this spacious haven is filled with lush lawn, decking and patio.
Offering semi-rural living moments from the picturesque charms of Epping and the plentiful choice of Harlow, you’ve the best of both worlds here. With beautiful views across open farmland, stunning local forest walks, plus easy access to the M11 and Epping Underground tube, this is a great place to call home.
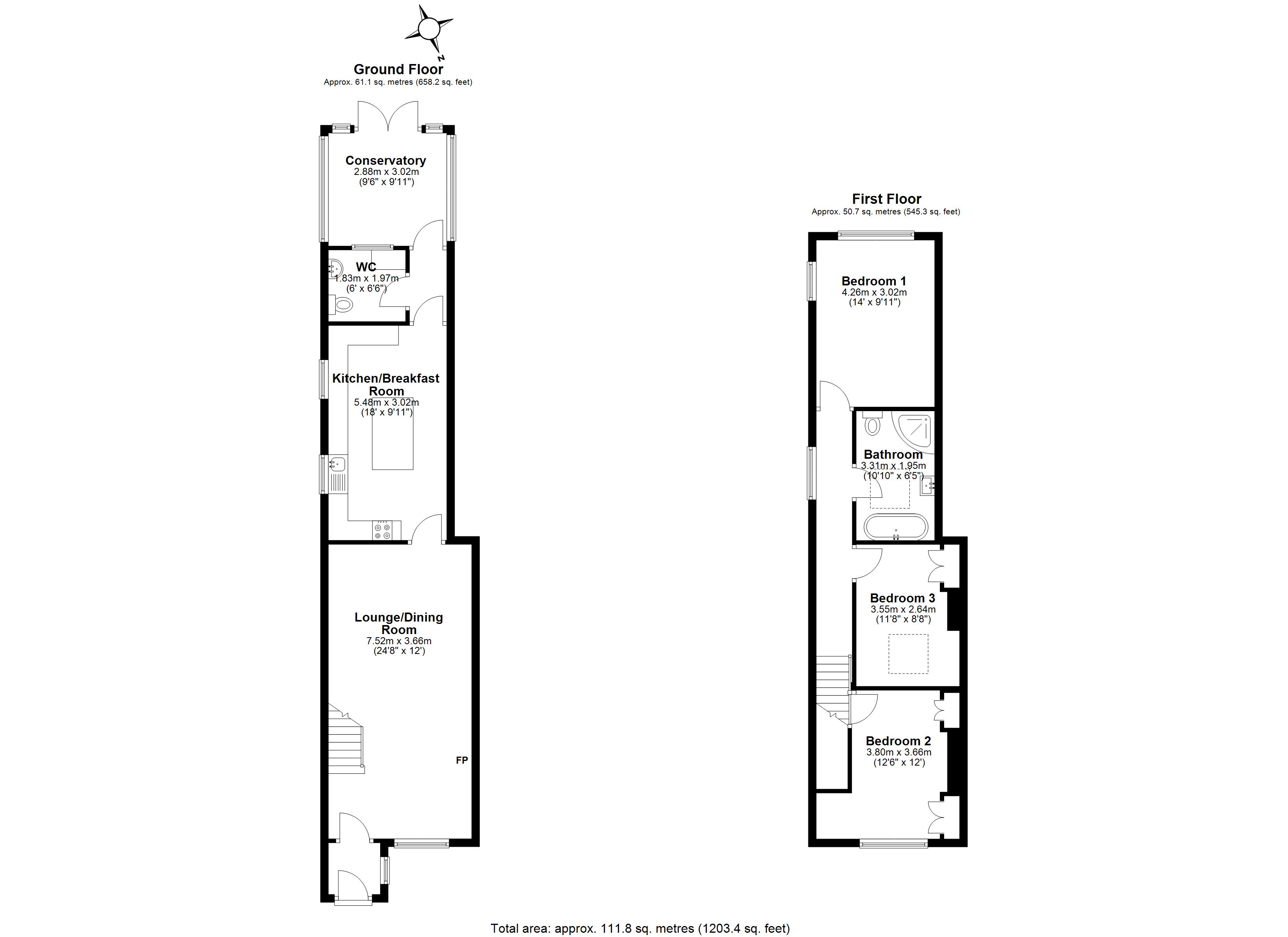
Lounge / Dining Room 24' 8" x 12' 0" (7.52m x 3.66m)
Kitchen 18' 0" x 9' 11" (5.48m x 3.02m)
Utility/ WC 6' 0" x 6' 6" (1.83m x 1.97m)
Conservatory 9' 5" x 9' 11" (2.88m x 3.02m)
Bedroom 14' 0" x 9' 11" (4.26m x 3.02m)
Bedroom 12' 6" x 12' 0" (3.80m x 3.66m)
Bedroom 11' 8" x 8' 8" (3.55m x 2.64m)
Bathroom 10' 10" x 6' 5" (3.31m x 1.95m)











































